Référence GROHE SARL : 39145000
Référence JUSTIN BLEGER : GRO11001

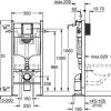
Accroche : RAPID SL PROJECT BÂTI SUPPORT POUR WC, 1.13 M
Descriptif :
PRINCIPALES CARACTÉRISTIQUES DU PRODUIT:
Réservoir et mécanisme pneumatique Certifié NF
Réservoir GD 2, 6-9 L, contenant les caractéristiques suivantes :
Pour montage vertical
Contient les supports muraux 3855800M pour une installation murale
Pour le montage des petites plaques de commande, commander séparément le gabarit 40 911 000
Norme : 'NF'